Save
Expressions of Interest

Expressions of Interest

46 Jacks Drive, West Melton 7618, New Zealand

3 Bedrooms
2 Bathrooms
2 Lounges
3 Carpark Spots
888 m² Property Footprint
1,000 m² Land Footprint

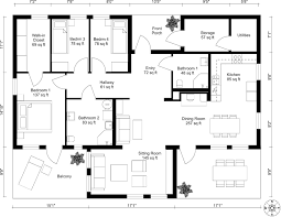
Property Floor Plan

Property Image 6

Property Description

A beautifully presented three-bedroom brick townhouse offering expansive indoor-outdoor living, two inviting lounges, and a large garden-view section, making it the perfect sanctuary for families seeking both space and modern comfort.

This delightful home welcomes you with a sense of warmth and tranquillity. As you step through the front door, you are greeted by a spacious entryway that sets the tone for the rest of the property. The thoughtful design ensures a seamless flow between the various living spaces, enhancing the overall functionality of the home. The generous floor area of 888 square metres provides ample room for family gatherings, entertaining friends, or simply enjoying quiet evenings at home.

Living
The heart of this residence lies in its two well-appointed lounges, each offering distinct atmospheres for relaxation and entertainment. The first lounge is bathed in natural light, thanks to large windows that frame picturesque views of the surrounding garden. This inviting space is perfect for unwinding after a long day or hosting family movie nights. The second lounge, equally spacious, provides an additional area for leisure or can be transformed into a playroom for children, ensuring that every family member has their own space to enjoy.

The layout of the living areas is designed with convenience in mind, allowing for easy interaction between the kitchen, dining, and lounge spaces. The open-plan design fosters a sense of togetherness, making it ideal for families who value quality time spent together.

Kitchen and Dining
The modern kitchen is a chef's delight, featuring contemporary finishes and ample storage space. Equipped with quality appliances and generous bench space, it is both functional and stylish. The kitchen seamlessly flows into the dining area, creating an inviting space for family meals and entertaining guests. Large sliding doors lead out to the outdoor area, allowing for effortless alfresco dining and an abundance of natural light to fill the room.

The dining space is well-positioned to take advantage of the garden views, making every meal a delightful experience. Whether hosting a formal dinner party or enjoying a casual breakfast with loved ones, this area is designed to accommodate a range of dining occasions.

Bedrooms
This townhouse boasts three spacious bedrooms, each thoughtfully designed to provide comfort and privacy. The master bedroom is a true retreat, featuring ample space for a king-sized bed and additional furniture. Large windows invite natural light, creating a serene atmosphere perfect for relaxation. The master bedroom also includes an ensuite bathroom, ensuring convenience and privacy.

The two additional bedrooms are equally generous in size, making them suitable for children, guests, or even a home office. Each room is designed with functionality in mind, providing ample storage options and the flexibility to adapt to your family's changing needs. With the potential for personalisation, these bedrooms can easily become a reflection of your family's style and preferences.

Bathrooms
The property features two well-appointed bathrooms, ensuring that morning routines run smoothly for the entire household. The master ensuite is modern and stylish, featuring quality fixtures and finishes that create a spa-like atmosphere. The second bathroom is equally functional, designed to cater to the needs of family and guests alike. Both bathrooms are designed with practicality in mind, offering ample storage and easy-to-maintain surfaces.

Outdoor
One of the standout features of this property is its expansive garden-view section, which spans 1,000 square metres. The outdoor space is a true oasis, providing a perfect backdrop for family gatherings, children's play, or simply enjoying the beauty of nature. The well-maintained garden is a canvas for your landscaping dreams, whether you envision a vibrant flower garden, vegetable patches, or a tranquil retreat with seating areas.

The outdoor area is designed for versatility, with ample space for entertaining or relaxing. Imagine summer barbecues with friends, children playing in the garden, or simply enjoying a quiet moment with a book under the shade of a tree. The possibilities are endless in this serene outdoor sanctuary.

Location
Situated in a sought-after location, this townhouse offers the perfect blend of convenience and tranquillity. Families will appreciate the proximity to local schools, parks, and recreational facilities, making it an ideal choice for those with children. The nearby amenities include shops and cafés, ensuring that everything you need is just a short drive away.

For those who enjoy outdoor activities, the nearby river provides opportunities for walking, cycling, or simply enjoying the scenic views. The location is well-connected to public transport, making commuting to work or exploring the wider area a breeze.

Further Information
This property has been lovingly maintained, reflecting a history of careful stewardship that enhances its appeal. With its brick construction, the home offers durability and low maintenance, allowing you to spend more time enjoying your surroundings rather than worrying about upkeep. The annual property rates are reasonable, ensuring that this home is not only a comfortable living space but also a sound investment for the future.

The home is well-suited for families seeking a spacious and modern residence that caters to their lifestyle needs. Whether you are a first-time buyer, a growing family, or someone looking to downsize without compromising on space, this property offers the perfect balance of comfort and convenience.

In summary, this three-bedroom brick townhouse is a rare find, combining modern living with the charm of a spacious garden-view section. With two lounges, a well-equipped kitchen, and ample outdoor space, it is designed for families who value both comfort and community. The location provides easy access to local amenities, schools, and recreational opportunities, making it an ideal choice for those looking to establish roots in a welcoming neighbourhood.

We invite you to explore this exceptional property further. Expressions of interest are welcomed, and we encourage you to contact the Bayleys salesperson for more information or to arrange a private viewing. This is a home that truly deserves your attention, and we look forward to helping you discover all that it has to offer.

Key Features
💰 Sale price: $999,000.00
🧱 Construction: Brick
🛏️ Bedrooms: 3
🛁 Bathrooms: 2
🛋️ Lounges: 2
🚗 Carparks: 3
📐 Land Area: 1,000m²
📐 Floor Area: 888m²
📅 Property age: 20-30 years
🏠 Property style: Cottage
🌅 View: River View
🛡️ Insurance: Has insurance
🧾 Annual property rates: $2,500.00
📊 Building efficiency: 296 m² per bedroom
💧 Lot size and permeability: 88.8%
🌿 Garden

Bilateral Intelligence Dashboard

Local lifestyle analysis powered by fragment-data synthesis

Active Market
Vibe Score
Tranquil • 13%

Our proprietary algorithm synthesizes local point-of-interest density, transit flow, and community engagement to determine the "lifestyle energy" of this coordinate.

Serenity Index
Sanctuary • 95%

Calculates tranquility potential by weighing proximity to open green space against major thoroughfare noise and commercial traffic patterns.

Lifestyle Premium Anchors

Gym/Fitness
West Melton Gymnastics Club
7.1km
Boutique Cafe
Harpers House Ltd
820m
Dining
Two Fat Possums
970m
Market
Big T Supermarket
7.4km
Transit Hub
Rolleston
8.4km
Ferry Terminal
Quail island Ferry Jetty
29.9km
Airport
Christchurch Airport
14.2km
Medical
West Melton Medical Centre
1.0km
Coastal Access
Waimairi Beach
29.1km
🏘️

AI Location Synthesis

Bilateral Identity Authenticated

TOWNSHIP

Village Profile: Defined by a focused community atmosphere and a relaxed, village-centered pace of life with essential local character.

Boutique Social Scene: Enjoy local favorites like Harpers House Ltd, which serves as a premier local anchor for residents.

Culinary Diversity: The local culinary landscape features diverse dining experiences minutes away from your door, headlined by well-regarded establishments like Two Fat Possums.

Coastal Lifestyle: Pristine New Zealand coastlines at Waimairi Beach are a short drive from home, offering unparalleled opportunities for recreation and natural serenity.

🏘️
Balanced Lifestyle Seeker

Property Details

Property Type:
Townhouse
Category:
sale
Street Address:
46 Jacks Drive, West Melton 7618, New Zealand
Suburb:
West Melton
City:
West Melton
Region:
Canterbury Region
Land Area:
1,000m²
Floor Area:
888m²
Floor to Land Ratio:
0.89 (Higher density)
Site Coverage:
88.80% of total land
Annual Property Rates:
$2,500
Building Efficiency:
296.00m² per bedroom

Agent Information

Agent Image

Jingyu Test

Company Not Available
Website Not Available

Building Performance Details

Comprehensive property specifications and performance metrics

Energy Systems

Solar Power System

Installed

EV Charging

Available

Heating Systems

Pellet Fire
Heat pump
Wood burner
Central heating

Cooling Systems

Ceiling Fans
Whole-House Ventilation System
DVS System

Lighting

Standard

Environmental Impact

Water Efficiency

High

Carbon Footprint

1 kg CO2e/year

Sustainable Materials

N/A

Renewable Energy

Full

Construction and Materials

Exterior Cladding

Brick Veneer
Aluminium Cladding
Fibre Cement Board
Stone Cladding
Monolithic Plaster Cladding
Timber Weatherboard
Plywood Cladding
Vinyl Cladding
AAC / Hebel Panels

Interior Cladding

Wood Paneling Wood Paneling
Painted Plasterboard Painted Plasterboard
Hardboard Panelling Hardboard Panelling
Exposed Concrete Exposed Concrete
Plywood Interior Lining Plywood Interior Lining
Laminate Wall Panels Laminate Wall Panels

Construction Type

Brick

Insulation and Glazing

Wall Insulation

R-1.00 Rating

Roof Insulation

R-1.00 Rating

Windows

Double Glazing
Triple Glazing

AirTightness

1.00 ACH@50Pa

Insurance Risk Rating

Has Insurance/Can Be Insured

This property is currently insured or eligible for insurance coverage

Based on location, building materials, and natural hazard exposure
Mortgage Calculator

Air Metrics

Air Quality Rating
N/A
Grade N/A
Air Replacement Time
N/A
N/A
Temperature Stability
N/A
N/A

Based on continuous monitoring and environmental sensors

Utilities & Services

Water Source

N/A

Sewerage System

N/A

Power Supply

N/A

Internet Connection

N/A

Based on council records and property documentation

Solar Exposure Metrics

Daily Sunlight
Less than 4
Less than 4 / day
Seasonal Variation
Low
Low
Solar Potential
Low
Low

Based on annual solar studies
and site analysis

Thermal Performance Metrics

Heat Retention
Low
Low
Thermal Bridging
High
High
Temperature Differential
N/A
N/A

Based on thermal imaging and temperature monitoring

School Zones (10 KM)

Nearby Schools (10 KM)
Loading...
Loading nearby schools...
🏫
No Schools Found
We couldn't find any schools in the nearby area.

Contact Selling Agent Jingyu Test

Thank you! Your message has been sent successfully. The agent will contact you soon.
Error! Something went wrong. Please try again.
1 of 10
Property Image